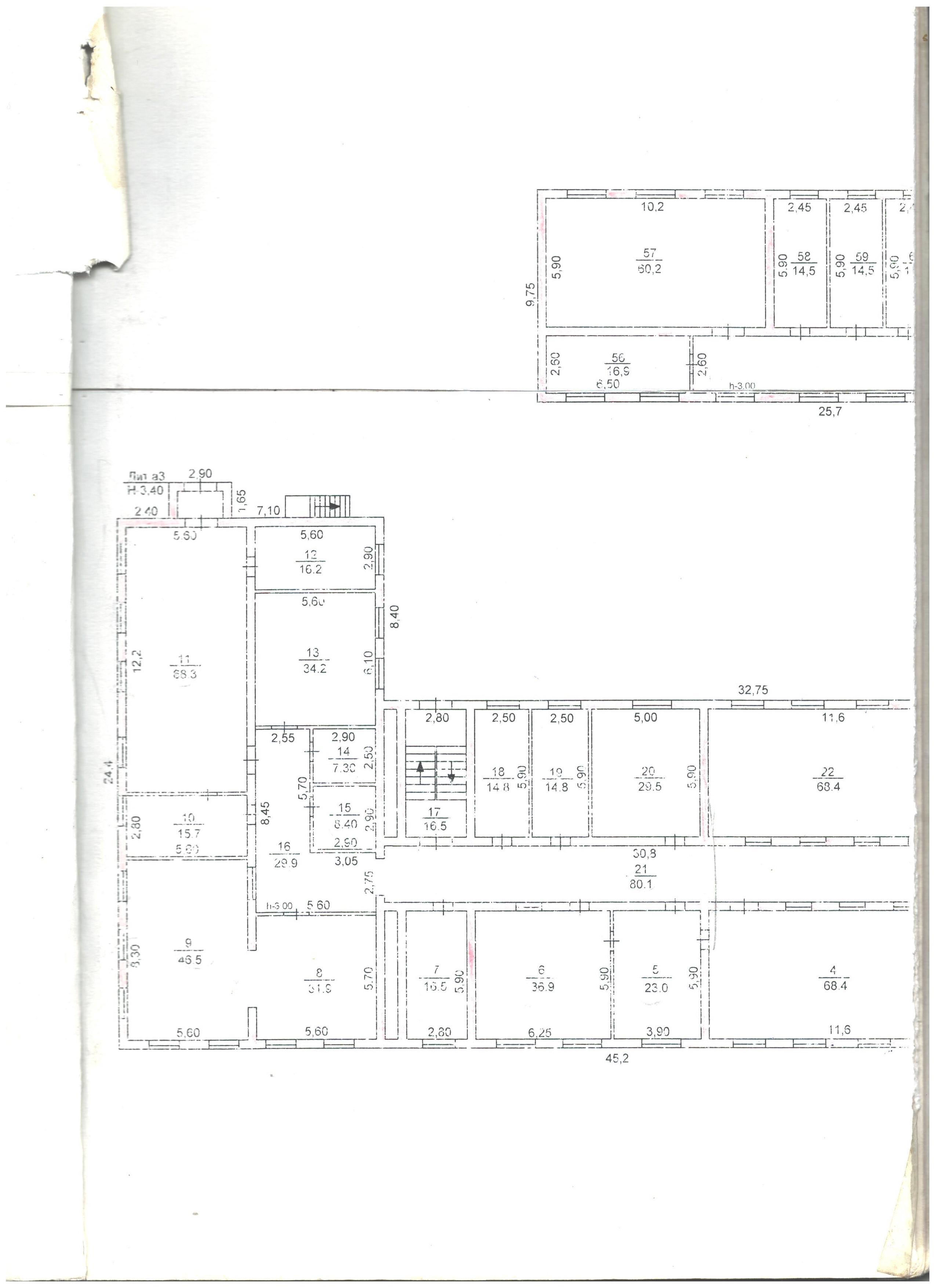
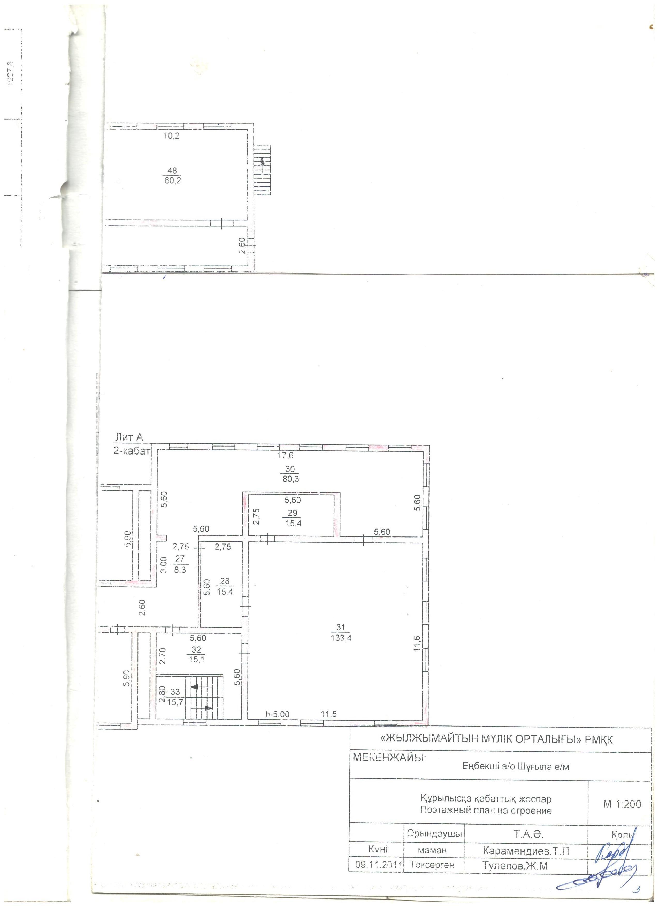
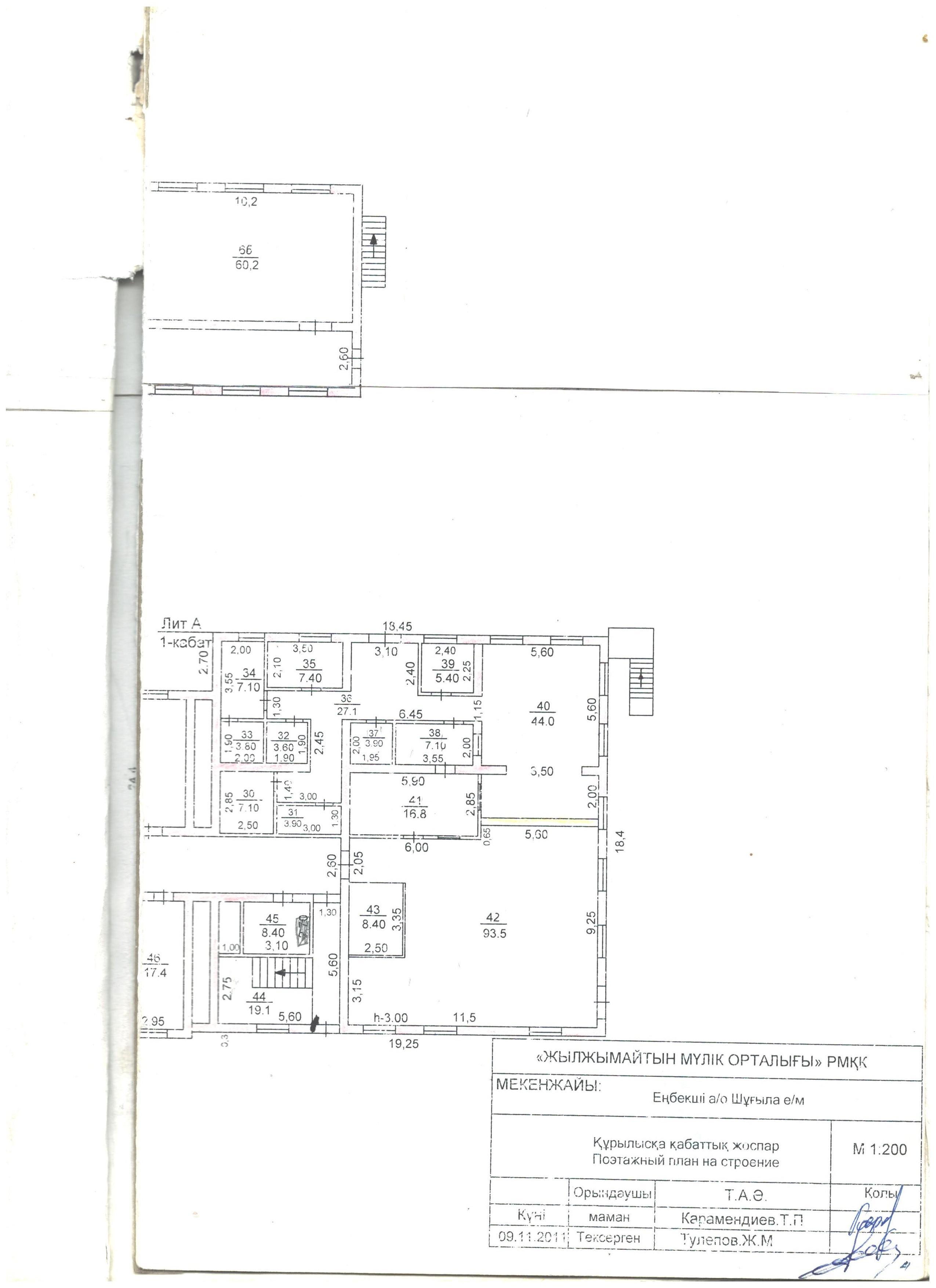
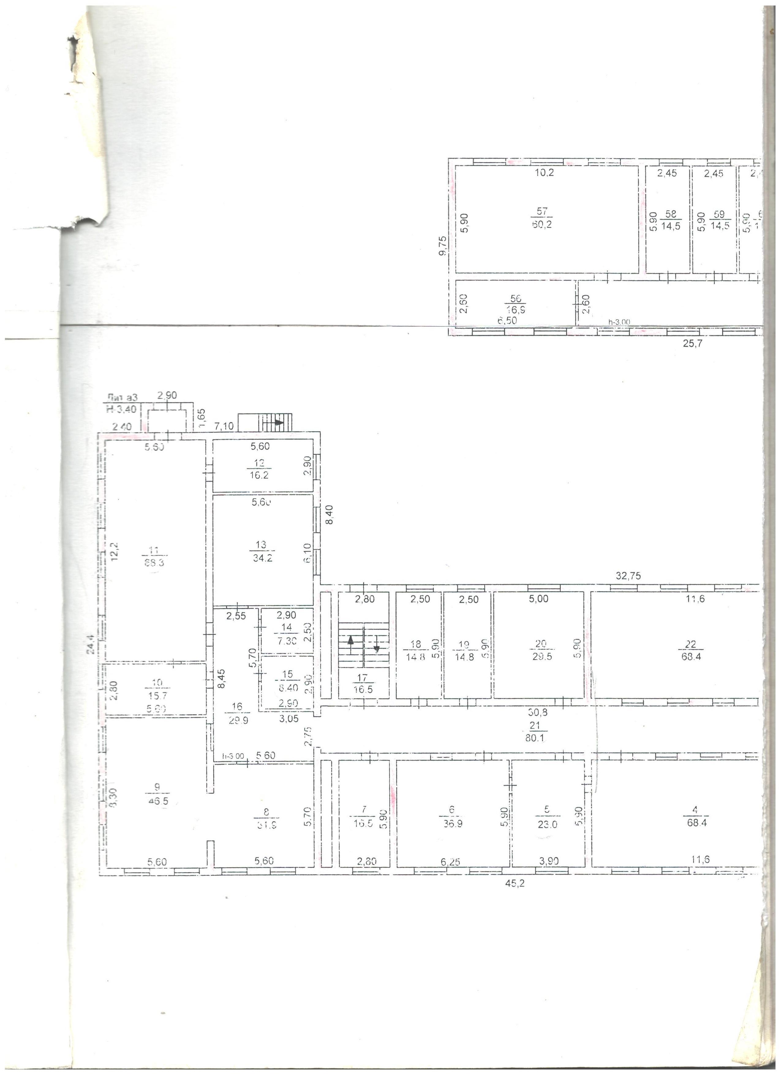
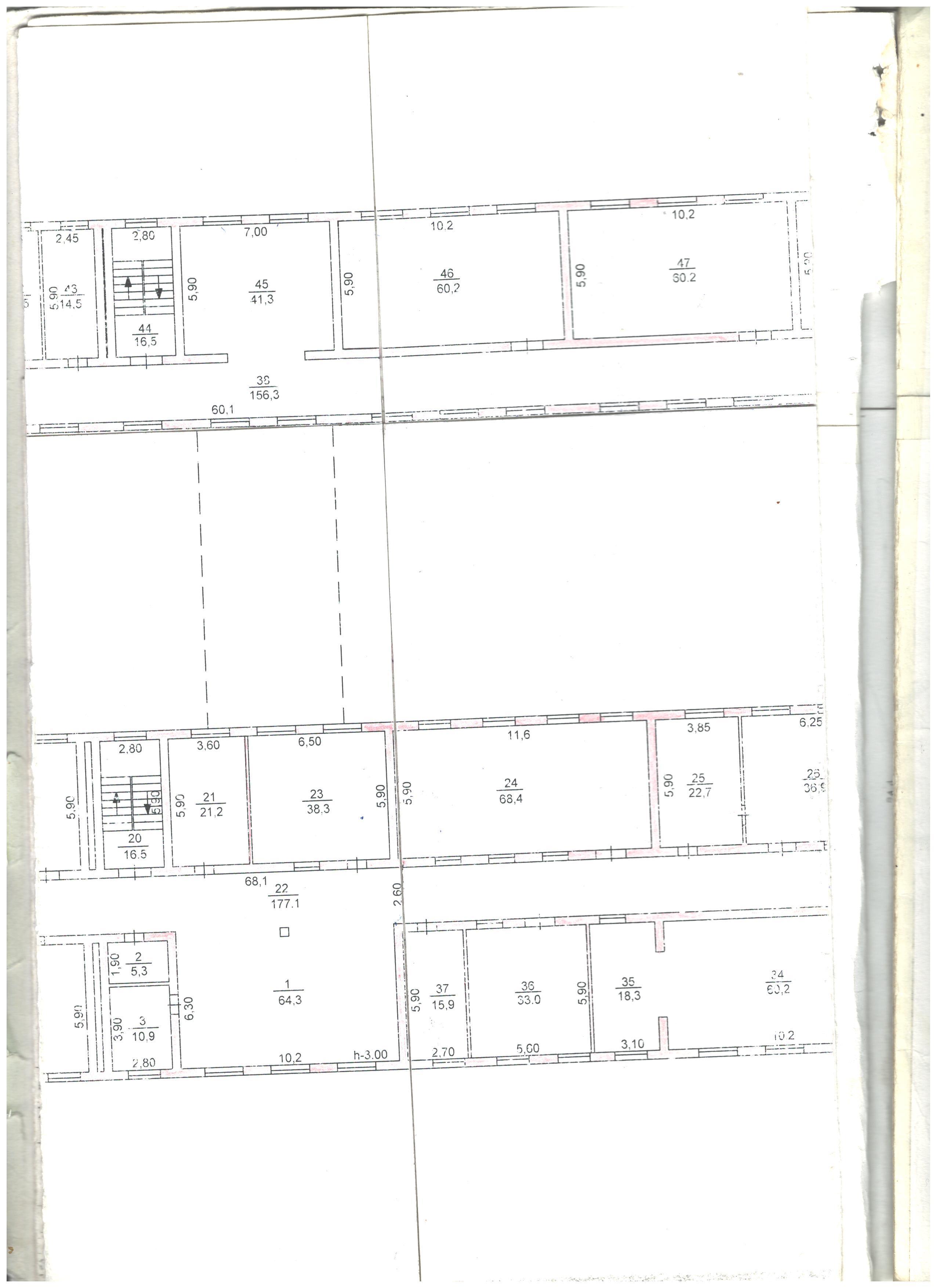
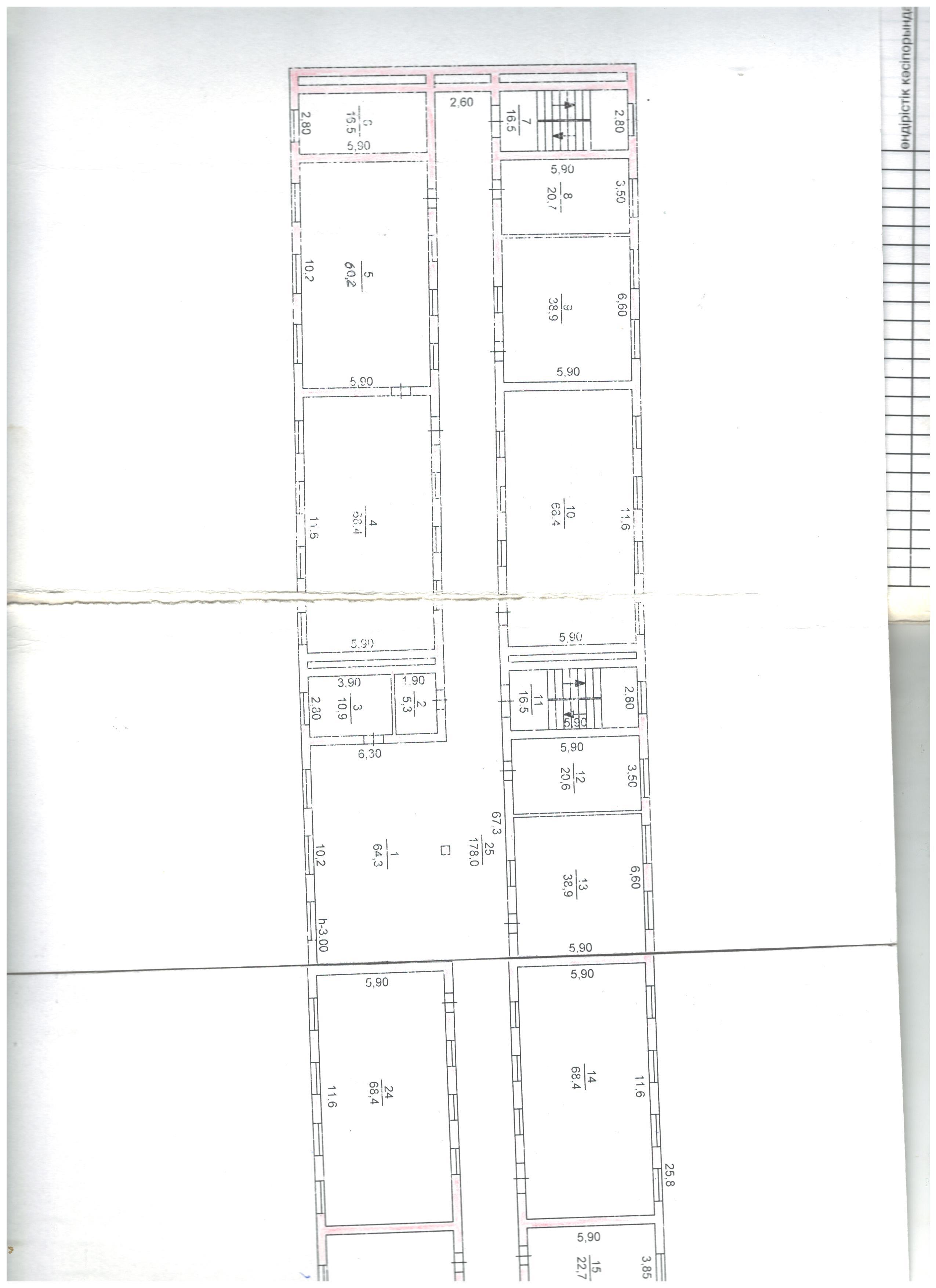
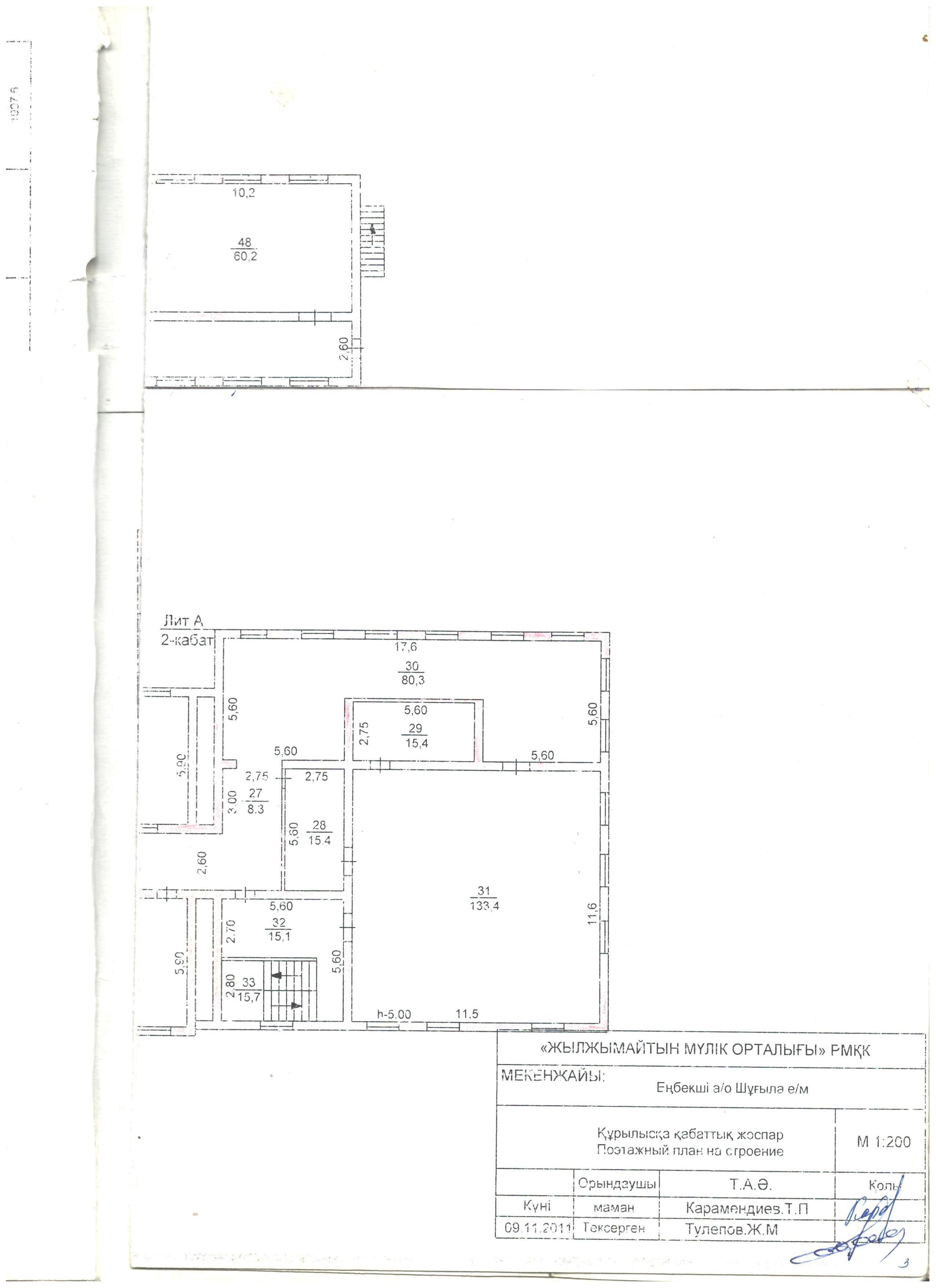
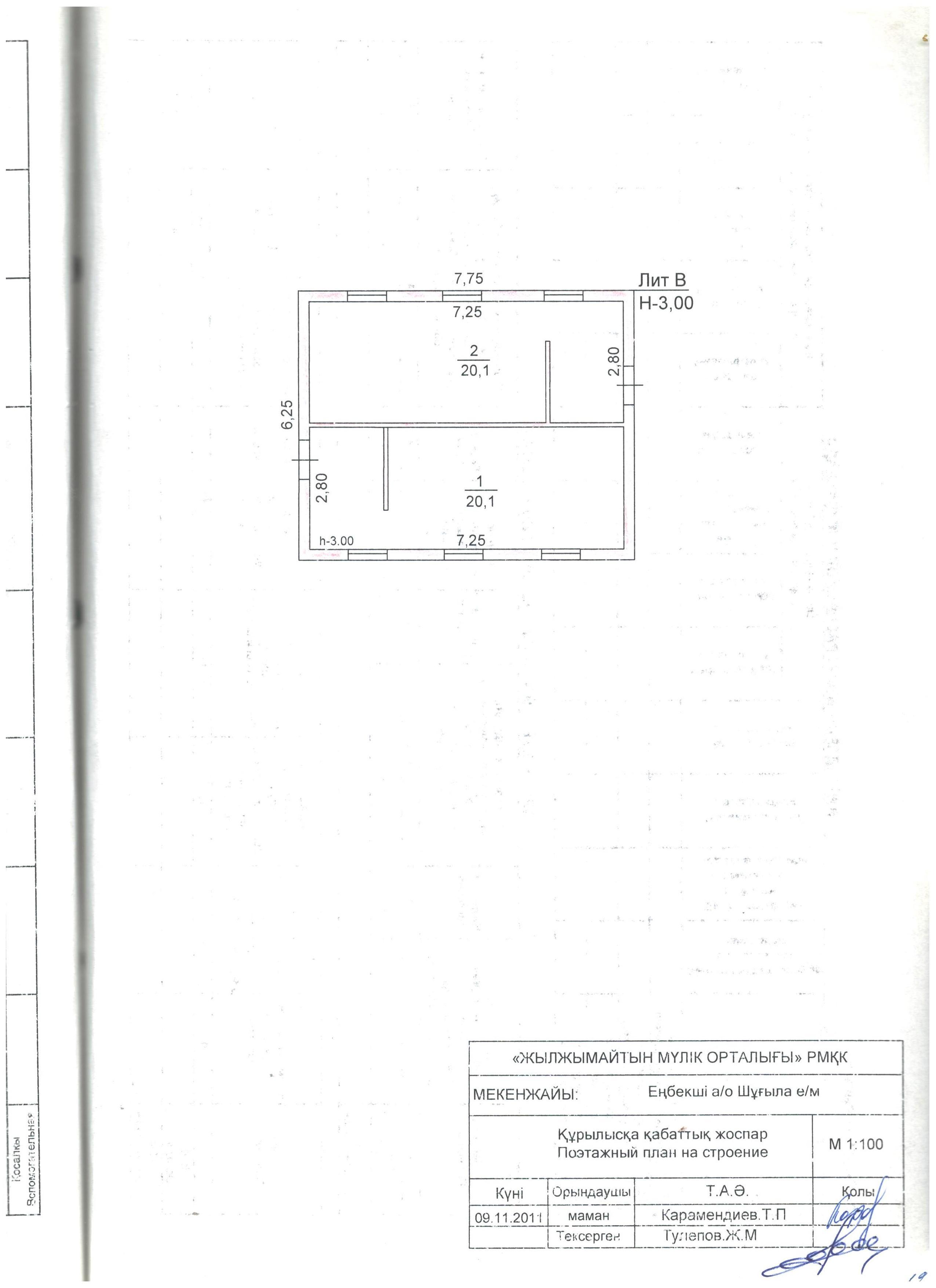
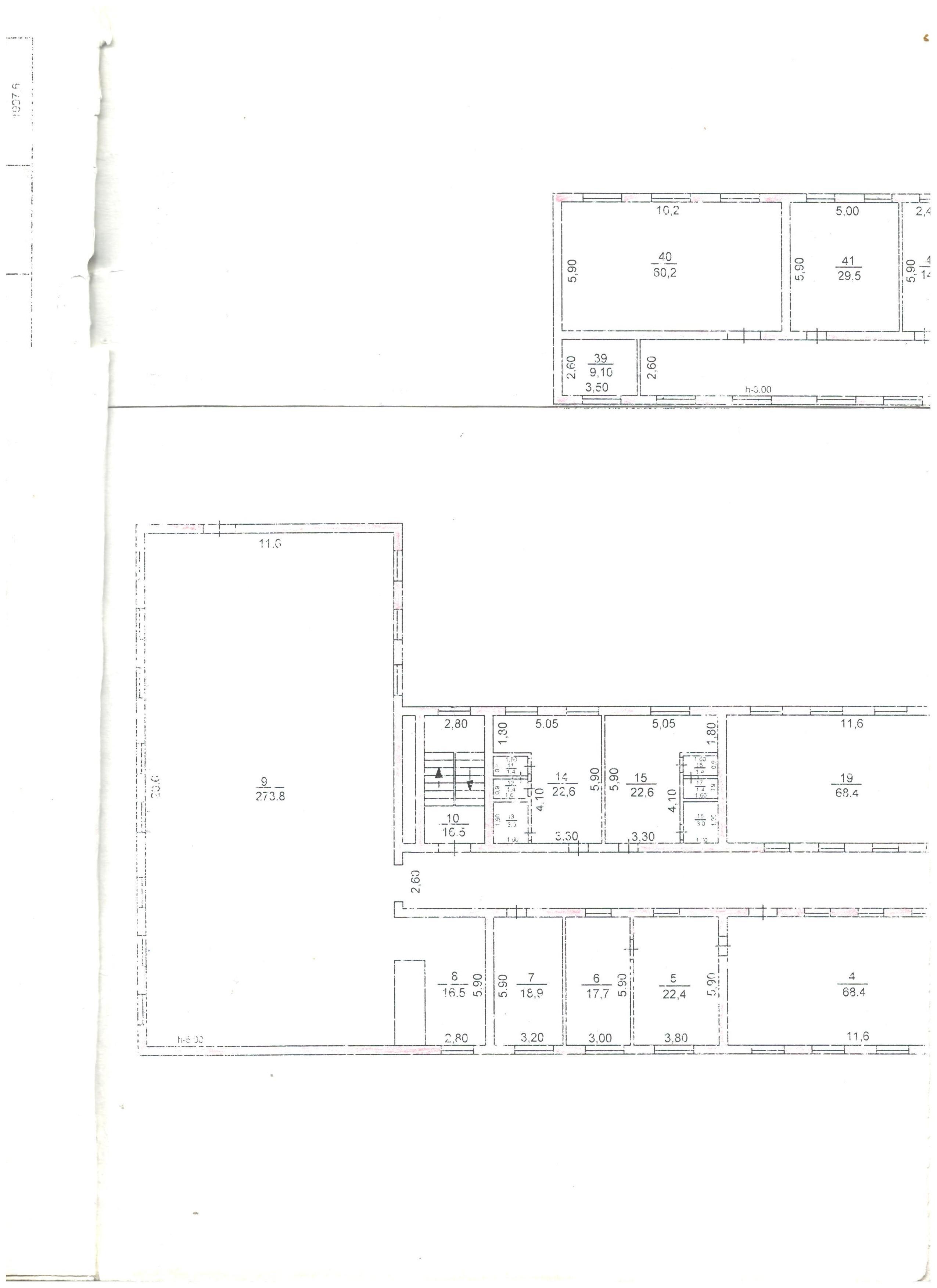
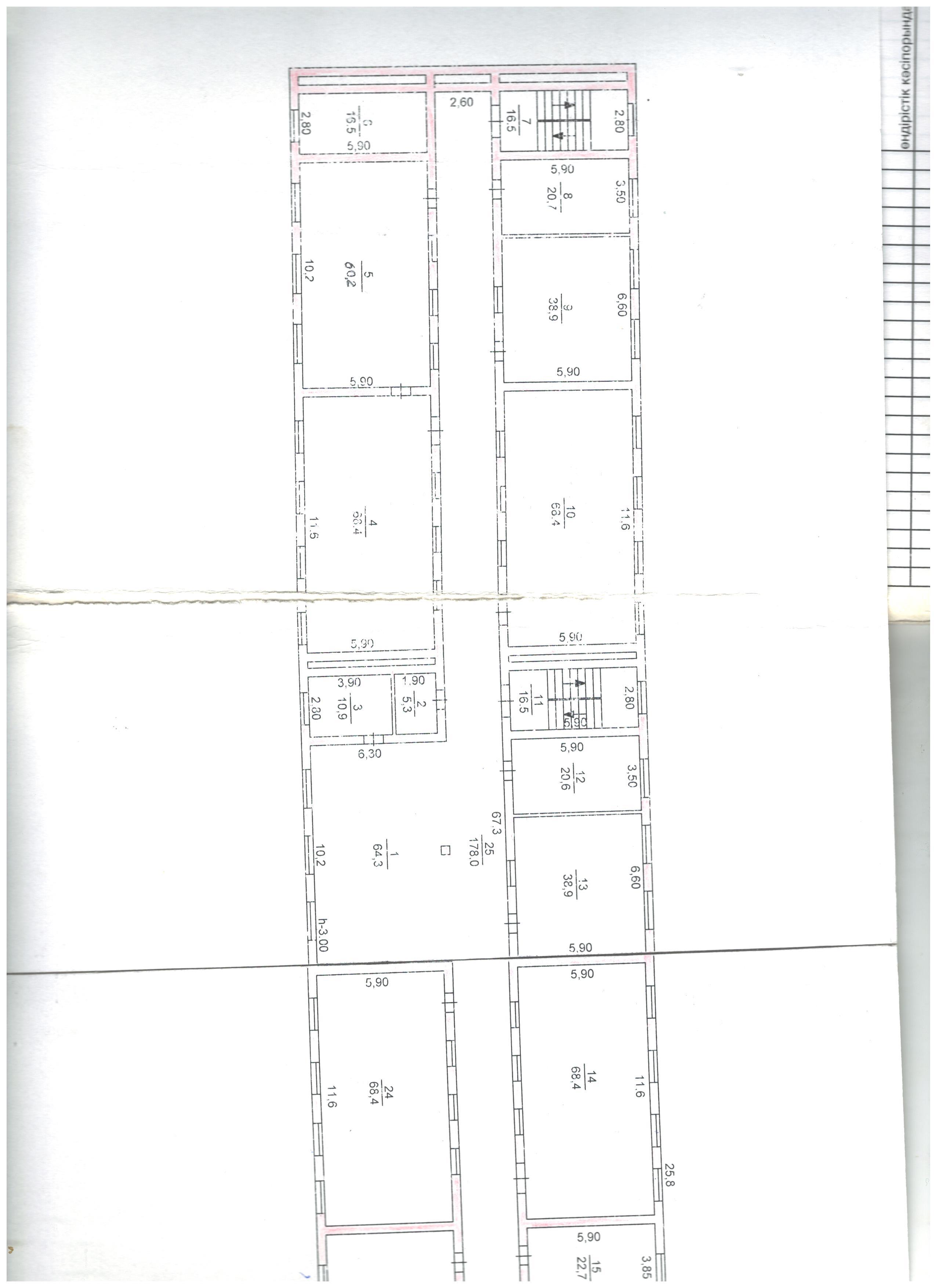
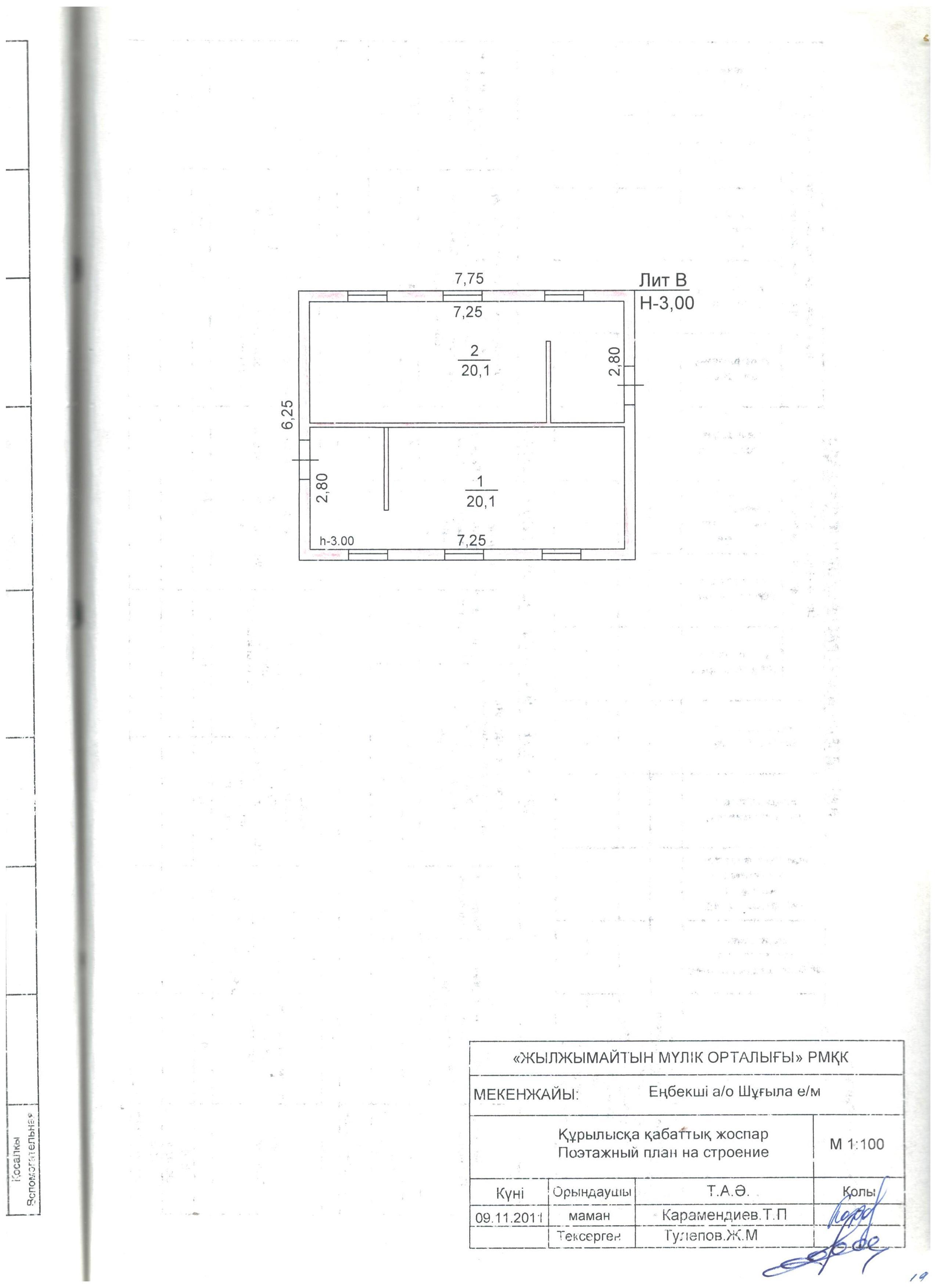
Техникалық түгендеу іс қазағы » "Шұғыла" ЖОМ
Түркістан облысы
Мақтарал ауданы білім бөлімінің
""Шұғыла" атындағы жалпы орта мектеп"
коммуналдық мемлекеттік мекемесі
Қабылдау бөлімі :
+7(72) 43-50-93
Есепші бөлімі:
+7(72) 23-11-37
Нашар көрушілер
нұсқасы
» » » Техникалық түгендеу іс қазағы
16
март
2023

Техникалық түгендеу іс қазағы






































Похожие публикации:

Прокомментировать
  • bowtiesmilelaughingblushsmileyrelaxedsmirk
    heart_eyeskissing_heartkissing_closed_eyesflushedrelievedsatisfiedgrin
    winkstuck_out_tongue_winking_eyestuck_out_tongue_closed_eyesgrinningkissingstuck_out_tonguesleeping
    worriedfrowninganguishedopen_mouthgrimacingconfusedhushed
    expressionlessunamusedsweat_smilesweatdisappointed_relievedwearypensive
    disappointedconfoundedfearfulcold_sweatperseverecrysob
    joyastonishedscreamtired_faceangryragetriumph
    sleepyyummasksunglassesdizzy_faceimpsmiling_imp
    neutral_faceno_mouthinnocent
Введите код с картинки:* Кликните на изображение чтобы обновить код, если он неразборчив